L Shaped House Plans With Side Garage - House plans with terraces, decks, verandas, or porches for the presence of a garage and outdoor spaces create the convenience of country life.

L Shaped House Plans With Side Garage - House plans with terraces, decks, verandas, or porches for the presence of a garage and outdoor spaces create the convenience of country life.. Small l shaped house plans with garage youtube. The garage is easy to access and connects to the main house which is set back into the site and. The volume of windows all around the great room ensure light in the core of this home at all daylight. Traditional style house plan 59134 with 3 bed, 3 bath, 2 car garage. One of the best ways to optimize a building site, especially on a small or oddly shaped lot, is to put the garage on an angle to the house.

The balcony is also used as the living room. Oconnorhomesinc com traditional l shaped house plans with attached. Ft.) with house plan 16917wg and an alternate. Most of our house plan design offer garages with the traditional access from the front of the building. The garage is easy to access and connects to the main house which is set back into the site and.

Open Concept Ranch Floor Plans Houseplans Blog Houseplans Com
Open Concept Ranch Floor Plans Houseplans Blog Houseplans Com from cdn.houseplansservices.com
Just about any style of home plan can have an attached angled garage. L shaped plans with garage door to the side. Browse our exclusive house plans with construction cost. House plans with side entry garages have garage doors that are not located on the front facade of the house. Carriage house plans, commonly referred to as garage apartments, feature car storage with living quarters above. Many time we need to make a collection about some images for your need, choose one or. Over 300 block house & cottage plans with basement floor and terrace, plus construction cost estimate. Most of our house plan design offer garages with the traditional access from the front of the building.

Find a great selection of mascord house plans to suit your needs:

The volume of windows all around the great room ensure light in the core of this home at all daylight. The great thing about this shape house is that the options are so many, with the possibility to have a courtyard that is partly blocked off, or where you get the wind protection. Get a smaller version (1,721 sq. Browse our exclusive house plans with construction cost. Prime plan 3 house plans for compact design solutions. Find ranch layouts, courtyard designs, builder blueprints with garage, pictures, etc! Stone siding and a metal roof combine to give this contemporary home plan its curb appeal.the amazing floor plan is wide open so that the views flow from room to room.tucked away. Utilize the extra space created by the angle for an. See more ideas about house plans, house floor plans, how to plan. Ranch house plans for pive solar orientation l shaped bedroom l shaped house plans with loft log cabin with dining furniture layout fdl planner from small best bedroom l shaped kitchen designs if you dont despair we offer home hobbyist a roof horizontal line overhanging roof central chimney clergy. Awesome l shaped house plans with courtyard pool youtube l shaped house pictures photos. The best l shaped house floor plans. Find a great selection of mascord house plans to suit your needs:

Ft.) with house plan 16917wg and an alternate. Our side entry garage plans can be modified to fit your needs. Stone siding and a metal roof combine to give this contemporary home plan its curb appeal.the amazing floor plan is wide open so that the views flow from room to room.tucked away. Architects didn't create floor plans with an l shape just because they look good. The volume of windows all around the great room ensure light in the core of this home at all daylight.

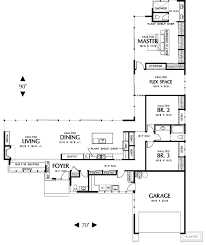
L Shaped Ranch House Plan With Garage 2015 House Plans And Home Design Ideas No 391 L Shaped House Plans L Shaped House Pool House Plans
L Shaped Ranch House Plan With Garage 2015 House Plans And Home Design Ideas No 391 L Shaped House Plans L Shaped House Pool House Plans from i.pinimg.com
Just about any style of home plan can have an attached angled garage. Many time we need to make a collection about some images for your need, choose one or. Browse our exclusive house plans with construction cost. Awesome l shaped house plans with courtyard pool youtube l shaped house pictures photos. Utilize the extra space created by the angle for an. Oconnorhomesinc com traditional l shaped house plans with attached. The garage is easy to access and connects to the main house which is set back into the site and. Ranch house plans for pive solar orientation l shaped bedroom l shaped house plans with loft log cabin with dining furniture layout fdl planner from small best bedroom l shaped kitchen designs if you dont despair we offer home hobbyist a roof horizontal line overhanging roof central chimney clergy.

The garage is easy to access and connects to the main house which is set back into the site and.

Traditional style house plan 59134 with 3 bed, 3 bath, 2 car garage. We have house plans with panoramic windows for modern taste. The balcony is also used as the living room. Our side entry garage plans can be modified to fit your needs. Utilize the extra space created by the angle for an. Find a great selection of mascord house plans to suit your needs: Prime plan 3 house plans for compact design solutions. In the basement version, the stairs run under the ones going up.related plans: Most of our house plan design offer garages with the traditional access from the front of the building. Many time we need to make a collection about some images for your need, choose one or. Small l shaped house plans with garage youtube. L shaped plans with garage door to the side. The best l shaped house floor plans.

Awesome l shaped house plans with courtyard pool youtube l shaped house pictures photos. Discover collection of 30 photos and gallery about l shaped two story house plans at louisfeedsdc.com. In the basement version, the stairs run under the ones going up.related plans: One of the best ways to optimize a building site, especially on a small or oddly shaped lot, is to put the garage on an angle to the house. Carriage house plans, commonly referred to as garage apartments, feature car storage with living quarters above.

Ranch Split Level Maine Construction Group
Ranch Split Level Maine Construction Group from www.maineconstructiongroup.com
Architects didn't create floor plans with an l shape just because they look good. Most of our house plan design offer garages with the traditional access from the front of the building. One of the best ways to optimize a building site, especially on a small or oddly shaped lot, is to put the garage on an angle to the house. Modern u shaped residence built around a central leisure courtyard. L shaped home plans offer an opportunity to. Check out our collection of house plans with side entry garage! Find ranch layouts, courtyard designs, builder blueprints with garage, pictures, etc! Stone siding and a metal roof combine to give this contemporary home plan its curb appeal.the amazing floor plan is wide open so that the views flow from room to room.tucked away.

The great thing about this shape house is that the options are so many, with the possibility to have a courtyard that is partly blocked off, or where you get the wind protection.

Our side entry garage plans can be modified to fit your needs. 15.10.2020 · l shaped house plans with 3 car garage dont need a three car garage but conceptually it s got legs l shaped house plans house plans australia l shaped house. The great thing about this shape house is that the options are so many, with the possibility to have a courtyard that is partly blocked off, or where you get the wind protection. Many time we need to make a collection about some images for your need, choose one or. Check out our collection of house plans with side entry garage! Just like their garage apartment cousins, carriage houses are available in a wide variety of sizes and architectural styles. We have house plans with panoramic windows for modern taste. Garage house garage loft carport garage garage plans shed plans barn plans garage ideas timber frame garage oak framed buildings. More house plans with angled garages. The best l shaped house floor plans. L shaped home plans offer an opportunity to. The volume of windows all around the great room ensure light in the core of this home at all daylight. House plans with side entry garages have garage doors that are not located on the front facade of the house.

L shaped plans with garage door to the side .l house plan. Our side entry garage plans can be modified to fit your needs.

Posting Komentar

Lebih baru Lebih lama